Referenz Hoch- und Ingenieurbau:
Erneuerung Trinkwasseraufbereitungsanlage Wasserwerk Kladow, Berlin
| Auftraggeber: | Berliner Wasserbetriebe |
| Zeitraum: | 2016 – 2020 |
Projektdaten
Erneuerung der sanierungswürdigen bau- sowie anlagentechnischen Einrichtungen, Dach- sowie Fassadenerneuerung unter Berücksichtigung der Belange einer Schadstoffsanierung, des Brandschutzes, des Tragwerkes sowie der Bauphysik
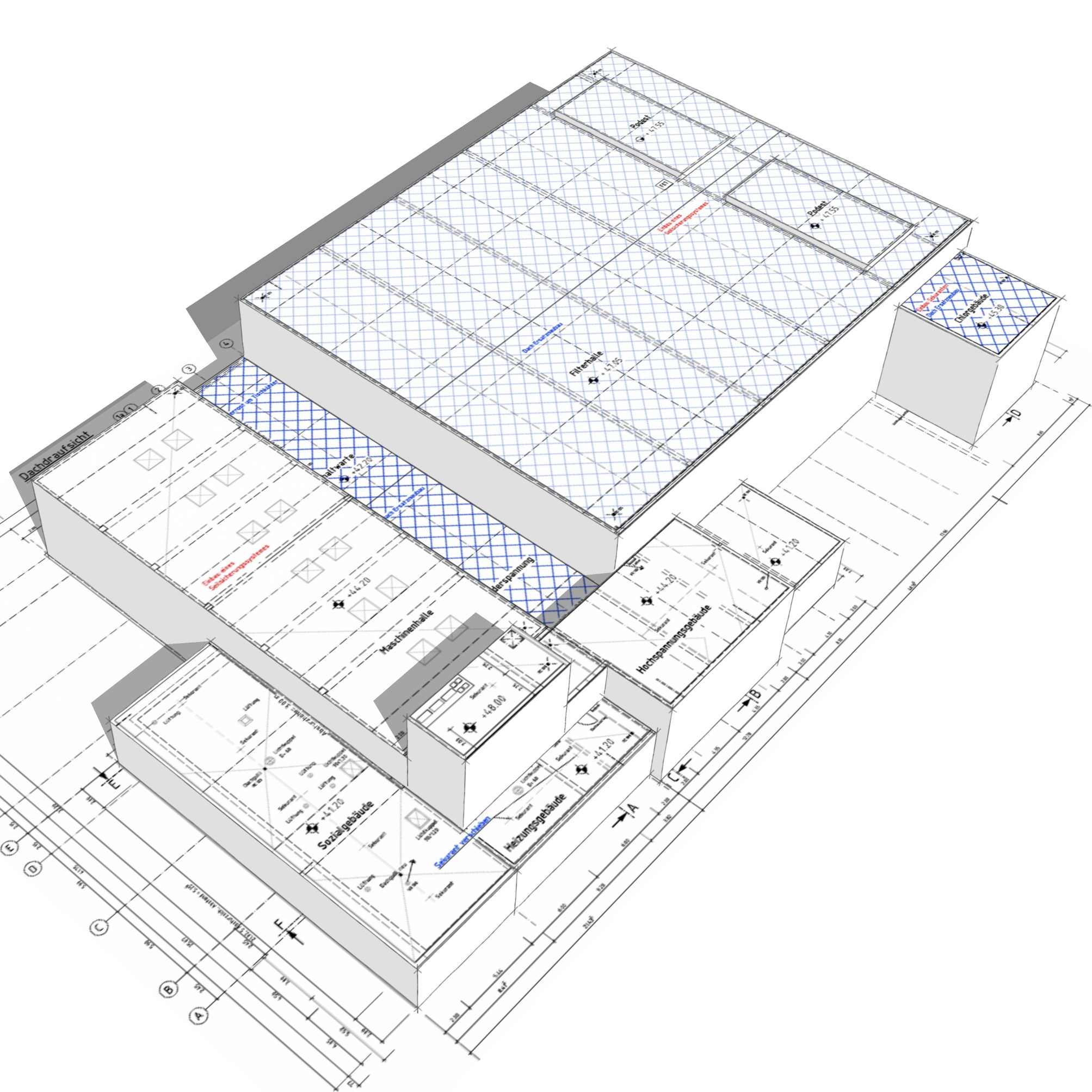
- Filterhalle Gebäudeabmessungen:
Länge: 70 m
Breite: 30 m
Höhe: 16 m - Aufbereitungskapazität: 30.000 m³/d
Unsere Leistungen
- Objektplanung Ingenieurbauwerke
